Inspiring Home Fitness Room Design Ideas to Pimp Your Home Gym

 
home gym layout by Biofit

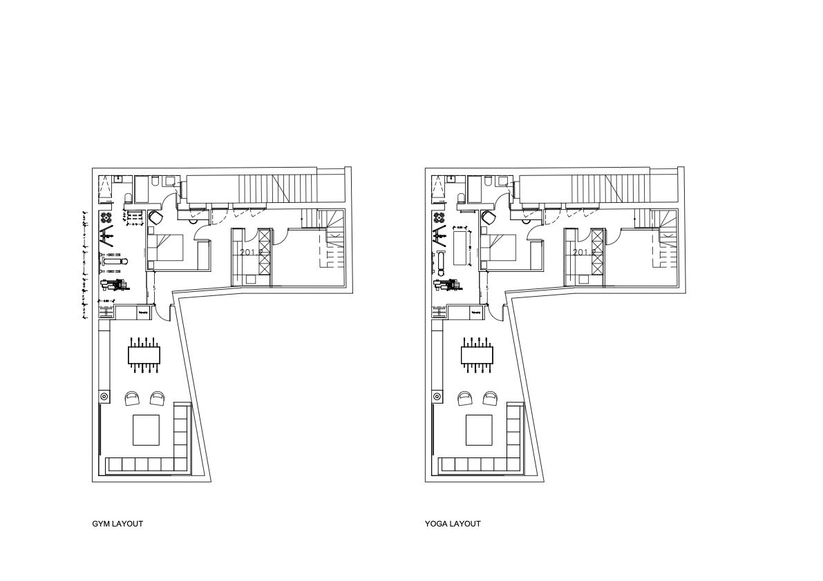
even high-end home gyms  are often small - this one we designed was just 12m2

Creating a home gym is more than just adding a few pieces of exercise equipment to an under-utilized room and hoping for the best; it’s about creating an environment that motivates you to stay active, and supports your fitness journey.

How much is this going to cost? At Biofit Gym Design Consultants, we believe that a well-designed home gym can be a powerful tool for cultivating a healthier lifestyle and adapt the budget according to requirements however there are some basic parameters to consider.

Ideally you would have at least 25m2 indoor space available for the home gym equipment, or even more if your home allows. We can always add more workout equipment, be that a treadmill or stationary bike, squat rack or pull-up bars, in order to maximize the number of movements on offer in the hom gym.


Jazzing it up with biophilic design

Definitely not for everyone BUT we mention it here nonetheless, by incorporating elements of biophilic design, such as natural materials, colours, fabrics and finishes we can add an additional layer of wellness when designing a home fitness space.

Below, we present an in-depth guide on how to create an inspiring home gym—complete with practical tips, design ideas, and expert advice to help you transform your available space into a personalized fitness sanctuary.


Planning Your Home Gym

What to Consider When Creating a Home Gym

When planning your home gym, it’s essential to start by defining your fitness goals. Are you aiming for high-intensity cardio workouts, strength training, movement and mobility, or lots of yoga and Pilates?

Your workout preferences will dictate the type of equipment, spatial requirements, and atmosphere you need in your gym. This in turn becomes the baseline from which we build the initial concept for the home gym design. Is it more exercise room or recovery room, zen space or high-energy cave?

Even a small workout room can provide the stage for an epic morning workout, if we get the interiors and equipment selection right.

Space planning

Next, assess the available space. Whether it's a spare room, garage, conservatory, or basement, each area presents unique opportunities and challenges. Carefully consider how you can utilize your chosen space for a functional and motivating home gym setup that maximizes the fitness equipment offer with a combination of gym machines for strength training and cardio machines such as exercise bikes for warming up, cooling down and building your endurance engine.

Be mindful of including good ventilation and natural light—two elements that contribute greatly to making the workout experience more comfortable and enjoyable. Good air circulation and sunlight are key components of biophilic design, something we at Biofit emphasize when developing wellness spaces.


Choosing the Right Location - potential gym locations

Spare Room

Converting a spare room into a home gym is an excellent way to create a dedicated space for workouts without disrupting other areas of the house. A spare room provides privacy, and with a few simple design changes—such as adding mirrors, storage solutions, and motivational wall art—you can create an atmosphere that encourages regular exercise.

Garage

A garage can easily be transformed into a fully functional gym. It offers the advantage of separation from the rest of the home, allowing for an uninterrupted workout experience. When designing gym spaces in garages, Biofit often recommends installing durable flooring, such as rubber mats, to protect the floor and create a comfortable workout area.

Conservatory

Converting a conservatory into a home gym allows you to work out with a sense of being outdoors, thanks to natural light and surrounding views. To avoid overheating during summer or cold temperatures in winter, consider proper insulation or ventilation systems, as well as blinds or curtains to regulate the sunlight.

Basement

Basements are excellent for creating a cozy, dedicated fitness space. You can install soft ambient lighting and mirrors to make the basement feel more open and inviting. Biofit often uses basements to create highly personalized spaces, incorporating features like infrared saunas or recovery zones for an all-in-one wellness experience.

Outdoor

Is there an outdoor space available either as an extension of your own home gym or a separate space for calisthenics training, working out with a barbell (e.g. Olympic lifts), using jump ropes and making the most of an outdoor functional space with no ceiling height restrictions - obviously!

Outdoor gym design by Biofit for Fritton Lake Members Club

Outdoor gym design by Biofit for Fritton Lake Members Club, a lakeside retreat with designer residences


Designing Your Home Gym Space

Essential Elements for a Functional Gym

To create a home gym that meets your workout needs, include some essential items such as:

- A Good Quality Yoga Mat: Whether it’s for stretching, yoga, or bodyweight exercises, a durable yoga mat is a must-have.

- Cardio Equipment: Depending on your fitness goals, you might choose a treadmill, stationary bike, or rowing machine to get your heart pumping.

- Strength Training Equipment: A set of dumbbells or resistance bands is essential for strength training, while a folding half rack is an ideal option for those focused on weightlifting.

- Mirrors: Adding a large mirror helps you maintain proper form and visually enlarges the space, making your home gym feel more open.

- Lighting and Ventilation: Good lighting, especially natural light, is key to creating an energizing workout space. Additionally, consider installing a fan or air purifier to maintain proper ventilation.


Space-Saving Gym Equipment Ideas

If space is limited, look for compact or multi-functional equipment that can be easily stored:

- Folding Treadmill: A foldable treadmill is perfect for smaller rooms, as it can be stowed away when not in use.

- Exercise Bike: Compact and effective for cardio workouts, an exercise bike is ideal for a smaller home gym.

- Rowing Machine: Rowing machines offer a full-body workout, and many models can be stored vertically to save space.

- Folding Half Rack: A foldable half rack is a great space-saving solution for weightlifting enthusiasts, offering the functionality of a full-sized rack without taking up too much room.


Maximizing Your Gym Space

Tips for a Well-Organized Home Gym

- Wall Art and Personal Touches: Add some personality to your gym space with motivational quotes, photos, or wall art. This helps create an inspiring atmosphere that keeps you motivated.

- Mirrors: Large mirrors not only help ensure correct form during workouts but also create the illusion of a larger space, which can make a small gym feel more open and airy.

- Storage Solutions: Shelves, cabinets, and storage bins are crucial for keeping your gym clutter-free. Wall-mounted racks for dumbbells, kettlebells, or resistance bands help save floor space.

- Tech for Guided Workouts: Mount a TV or tablet to the wall to stream guided workout videos or follow along with your favorite fitness apps.


Adding Decorative Touches

Making Your Home Gym Look Good

The aesthetics of your home gym can have a significant impact on your motivation and overall experience.

- Natural Light: Incorporating natural light is key to creating a bright and welcoming workout environment. If your chosen gym space lacks natural light, consider adding LED lights that mimic daylight to keep the space inviting.

- Colors and Materials: Use natural colors like greens and browns along with natural materials like wood and stone to create a calming, biophilic environment. At Biofit, we prioritize the use of materials that promote well-being, making the space feel like an extension of nature.

- Decorative Elements: Adding plants to your gym can help purify the air and make the space more relaxing. Decorative items, such as motivational posters or artwork, can further personalize the gym to fit your taste.

- Unique Features: Consider adding something unique, like a rock climbing wall or monkey bars, to create a space that’s both functional and fun. Biofit has incorporated similar features in clients' home gyms, blending playfulness with physical activity.


Customizing Your Home Gym Experience

- Sound System: Adding a sound system can create an energizing atmosphere. Listening to your favorite music or podcasts can make workouts more enjoyable.

- TV or Tablet for Workouts: Using a TV or tablet to stream workout videos makes it easy to follow along with guided exercises, keeping your fitness routine fresh and engaging.

- Relaxation Zones: If space allows, incorporating a sauna or steam room can make your home gym feel like a private wellness retreat. Biofit has experience designing these elements into home gyms, allowing for seamless transition from workout to relaxation.

- Personalized Decor: Customize your gym with items that resonate with you—such as family photos, motivational quotes, or memorabilia. A personalized touch makes the space feel more inviting and encourages consistent use.


Budgeting and Maintenance Considerations

Setting a Budget

It’s important to establish a realistic budget for your home gym. Prioritize the equipment and design solutions that are most relevant to your goals. While it may be tempting to invest in high-end equipment, there are often more affordable alternatives that offer similar benefits. For example, resistance bands can be just as effective as dumbbells for strength training.

Consider the cost of maintenance as well, especially for mechanical equipment such as treadmills or rowing machines. Regular maintenance ensures the longevity of your investment.

For those who need professional help in designing and installing a home gym, Biofit offers consulting services tailored to individual needs and budgets, ensuring the best use of your available space and resources.


Getting Inspired

Home Gym Inspiration from the Experts

Getting inspiration is a great way to jumpstart the process of creating your perfect home gym:

- Look Online: Browse online platforms such as Pinterest, Instagram, and design blogs to gather ideas on how to style your home gym.

- Hire a Professional: If you’re unsure where to start or want a more refined outcome, hiring a professional designer can be a great option. Biofit specializes in wellness-oriented spaces, offering expertise in combining functionality with aesthetics.

- Create a Vision Board: Compile images, colors, and design ideas that resonate with you. This vision board will help guide your design decisions and ensure your home gym reflects your preferences and goals.


Final Tips for a Successful Home Gym

The ultimate goal of creating a home gym is to design a space that motivates you to stay active and makes working out a more enjoyable experience. Here are some final tips for success:

- Have Fun and Be Creative: Design a space that’s unique to you, incorporating elements that inspire and motivate you.

- Think Long-Term: Investing in a home gym can lead to significant long-term savings, especially if it replaces the need for a gym membership. Convenience is another key benefit—having a dedicated space at home means there’s no need to commute to the gym, making it easier to stick to your fitness goals.

- Prioritize Your Fitness Goals: Always keep your goals in mind when designing the space. Whether it’s strength training, yoga, cardio, or relaxation, make sure your home gym supports your specific workout routine.

With careful planning, thoughtful design, and expert guidance, your home gym can become an inspiring space that keeps you motivated on your wellness journey.

 
Previous
Previous

Functional Fitness Gym Design: Creating the Perfect Facility

Next
Next

The Biofit Guide to Starting a Successful Micro Gym: Benefits and Challenges